Year 3, Week 16
Pile driving, battery storage, houses at Auldearn, the fire, road closures ...
Pile driving for Nairn Academy
Works have progressed well on the first stage of the replacement Nairn Academy. The earthworks are substantially complete with the main building platform in place.
The next phase of works will be the commencement of piling works from Monday, 26th August for a period of five weeks. There will potentially be some noise/disruption during the works however all endeavours will be made to minimise this. Local residents have been informed but I fear this may also be heard elsewhere in Nairn.
More batteries
This week I received notice of yet another Battery Energy Storage System (BESS) proposal south of Nairn. This makes five so I thought it was worthwhile giving you a brief overview of where we are on this. The rough location of the five proposals are shown below using purple numbers. The electricity substation to which they are proposing to connect is shown as a purple asterisk.
The five, in the order in which they appeared, are:
Blackpark 1 - this was from Blackpark Energy Storage Limited and proposed an output of up to 49.9MW on land off Granny Barbours Road to the left of the track to Blackpark. Approved on application 20/02589/FUL in December 2020 (there was also a previous application on the same site) and varied in a relatively minor way on application 23/04254/S42 in November 2023.
Househill - this was from Whirlwind Energy Storage Limited for up to 50 containers capable of storing 49.9MW (I am aware the unit of battery storage is “MWH”, not “MW”, but the application uses “MW”) on land opposite Househill. Approved on application 22/03638/FUL in February 2023.
Grigorhill - this is from OPDEnergy and again is for “up to 49.9MW” on land 330m east Of Grigorhill Cottage, Grigorhill. This is an an early stage and you can find details on my blog here and the associated application is 24/02660/SCRE.
Russell’s Wood - this is from Whirlwind Energy Storage Limited and is land off Granny Barbours Road which the applicant is calling Kinnudie. This is at a very early stage and you can find details my blog here. They have a public consultation event at Nairn Community Centre on 12th September between the hours of 3pm and 6pm.
Blackpark 2 - this is the one that came in this week. This is from Anesco Ltd and is on land on the opposite side of the track to Blackpark from the first Blackpark application. They are having a public exhibition at the Nairn Community Centre on Tuesday, 3rd September and Thursday 10th October, both from 1-7pm.
It’s worth nothing that neither of the approved schemes have started, and this is a common pattern across the Highland Council area. I’m also not sure if the sub-station has capacity to cope with input from five BESSs if they all happened.
The other factor is all of this is that the bypass, if and when it finally happens, which will separate locations 3 and 4 from the sub-station and indeed 4 is very close to the proposed bypass and the A96 would cut through their proposed access track.
New houses at Auldearn
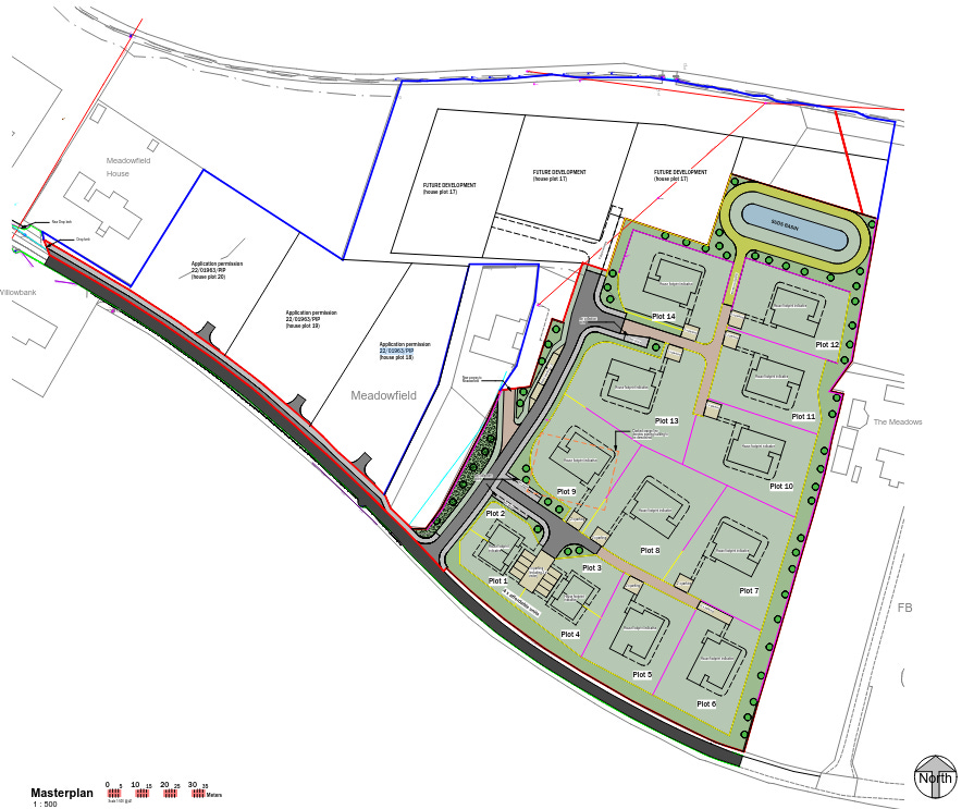
I did mention this application a couple of weeks ago in my list of planning applications but I think it’s significant enough to highlight here. The site layout is shown below.
The application 24/02772/FUL is a proposal for 14 houses on land to east of Meadowfield Farm on Moyness Road, Auldearn and is part of a larger scheme for 20 houses, three of which already have planning permission in principle (see application 22/01963/PIP).
Fire at the harbour
I’ve had several people ask me recently what’s happening with the derelict remains left by the fire in June last year. The flats were individually owned and I’m told that this is still in the hands of the various insurance companies involved. Highland Council are not in the picture at the moment but theoretically could be at some point in the future if this is not resolved.
Road closures
There is an ongoing temporary closure of the B9090 Cawdor Road in Nairn overnight until Friday, 30th August. This is in place to allow access for Network Rail repairs to the railway bridge.
There will be a temporary road closure of the C1154 south east of Cawdor on 30th August. The road will only be closed during off peak hours of 9:30am to 3:30pm with diversions in place but will be open as usual outside of these hours.
Planning applications
The following new applications were logged since I last posted:
24/03289/FUL - Nairn Swimming Pool, Marine Road, Nairn, IV12 4EA - Installation of accessibility wheelchair container
To find details search on the reference number on the planning portal where you can also find details on how to comment.



